OBRA DE ASCENSOR CALLE BIOSCA 15 – MADRID
Año: 2025
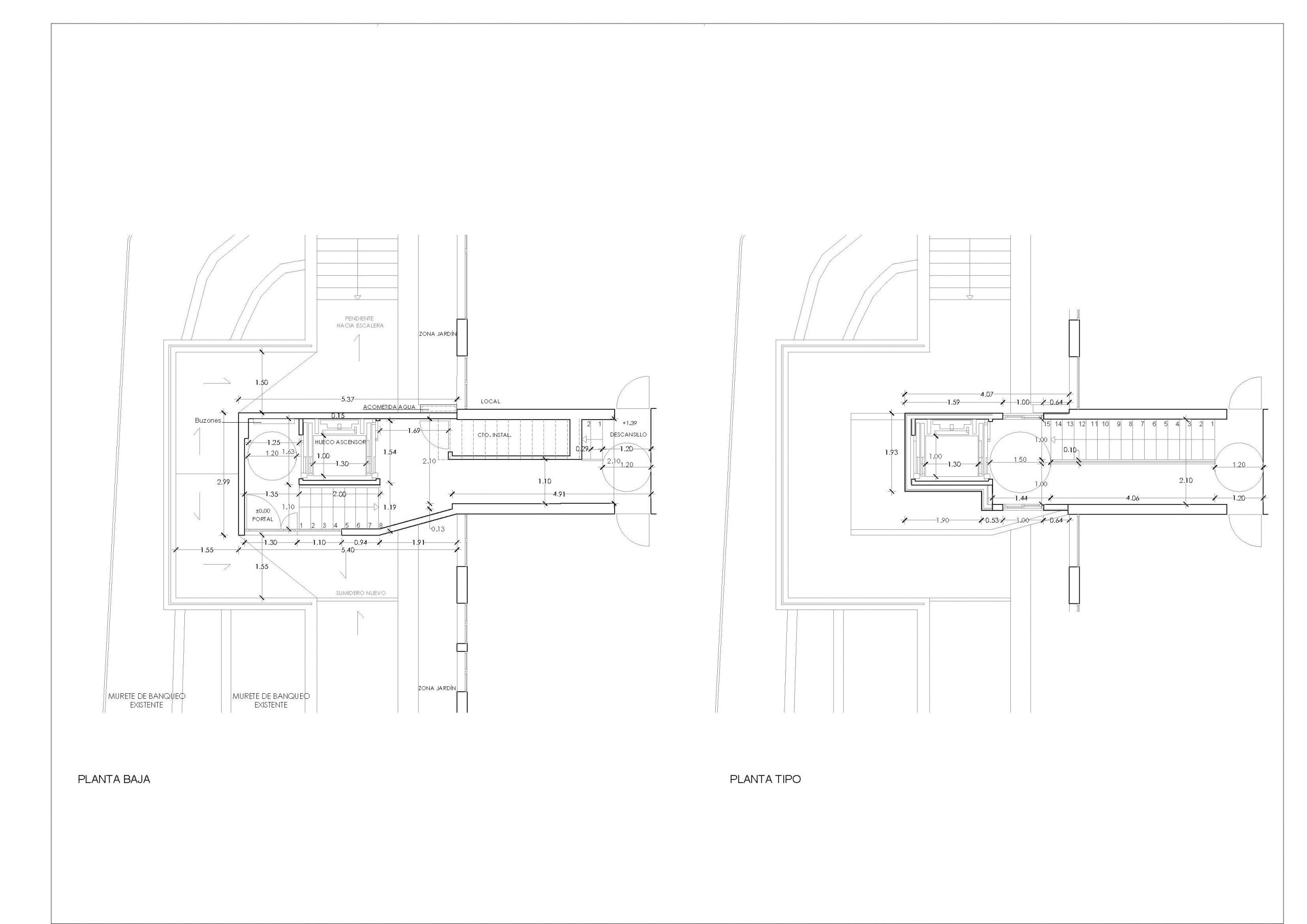
Para resolver un problema de accesibilidad se plantea la instalación de un ascensor tipo eléctrico. El ascensor da servicio a las viviendas situadas en 4 plantas más la baja en dos niveles. La ubicación del ascensor es exterior.
Como lo que se pretende es la completa eliminación de las barreras arquitectónicas, se ha demolido por completa la escalera actual, reconstruyéndola de un solo tramo y con pasarelas que unen los embarques en cada planta con los vestíbulos de entradas de las viviendas. En total, el aparato elevador cuenta con seis paradas.











