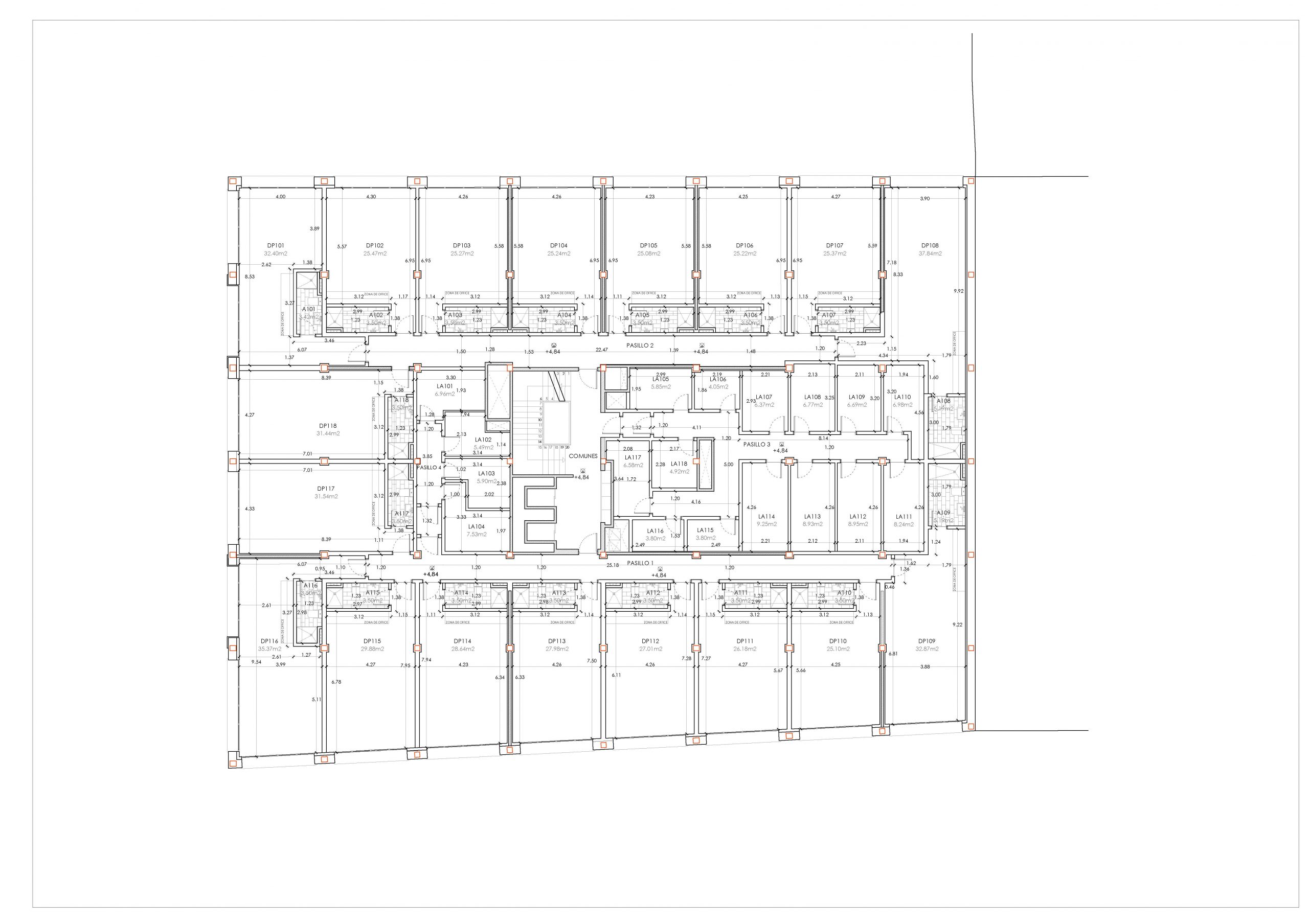
REFORMA Y ACONDICIONAMIENTO DE UNOS LOCALES DESTINADOS A OFICINAS SO24 SAN SEBASTIAN DE LOS REYES – MADRID
Año: 2024
Superficie construida: 3.000,00 m2
Las obras de acondicionamiento han consistido en dotar al edificio de las dependencias necesarias
para la formación de 53 despachos profesionales y 53 locales anejos.









